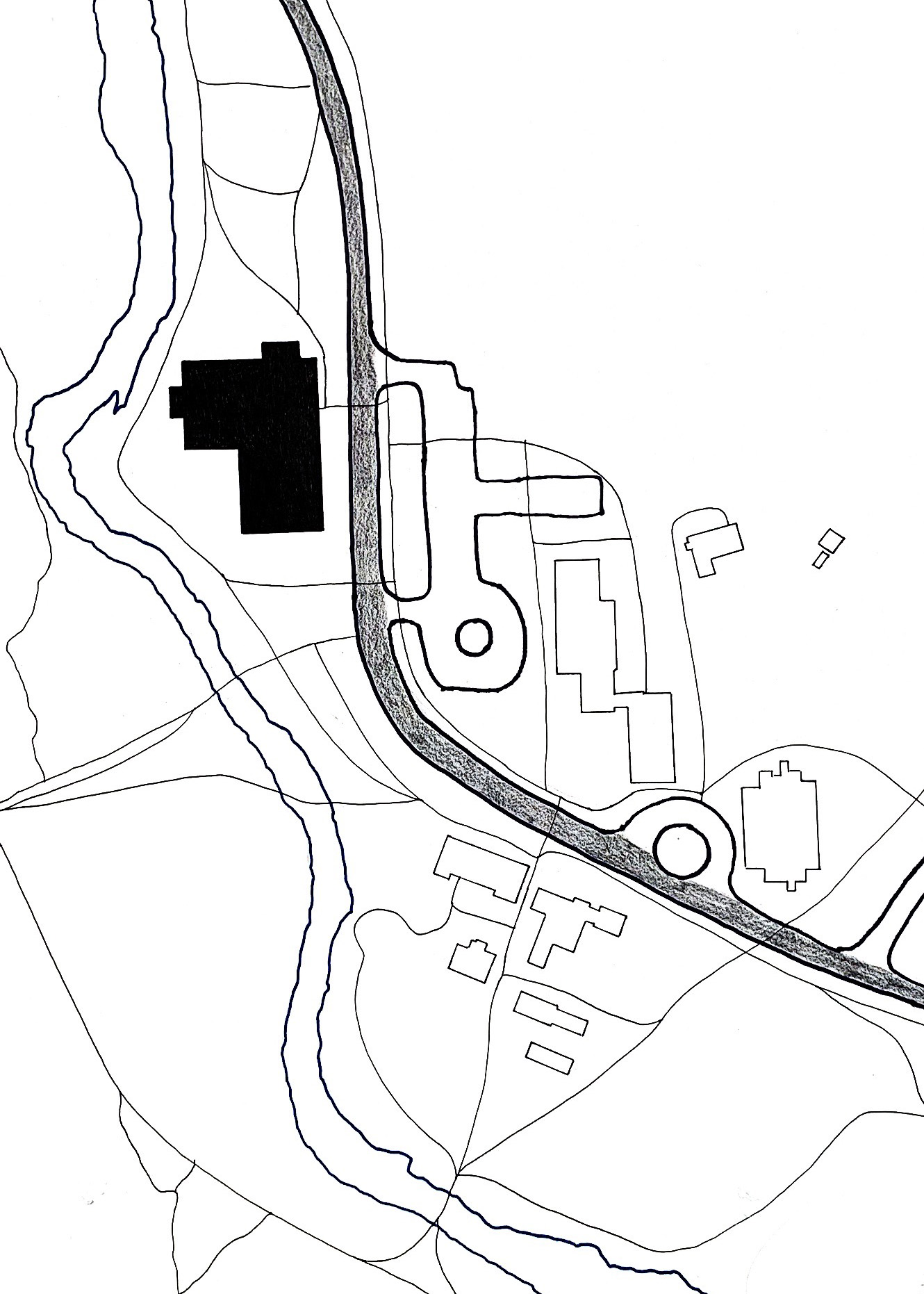
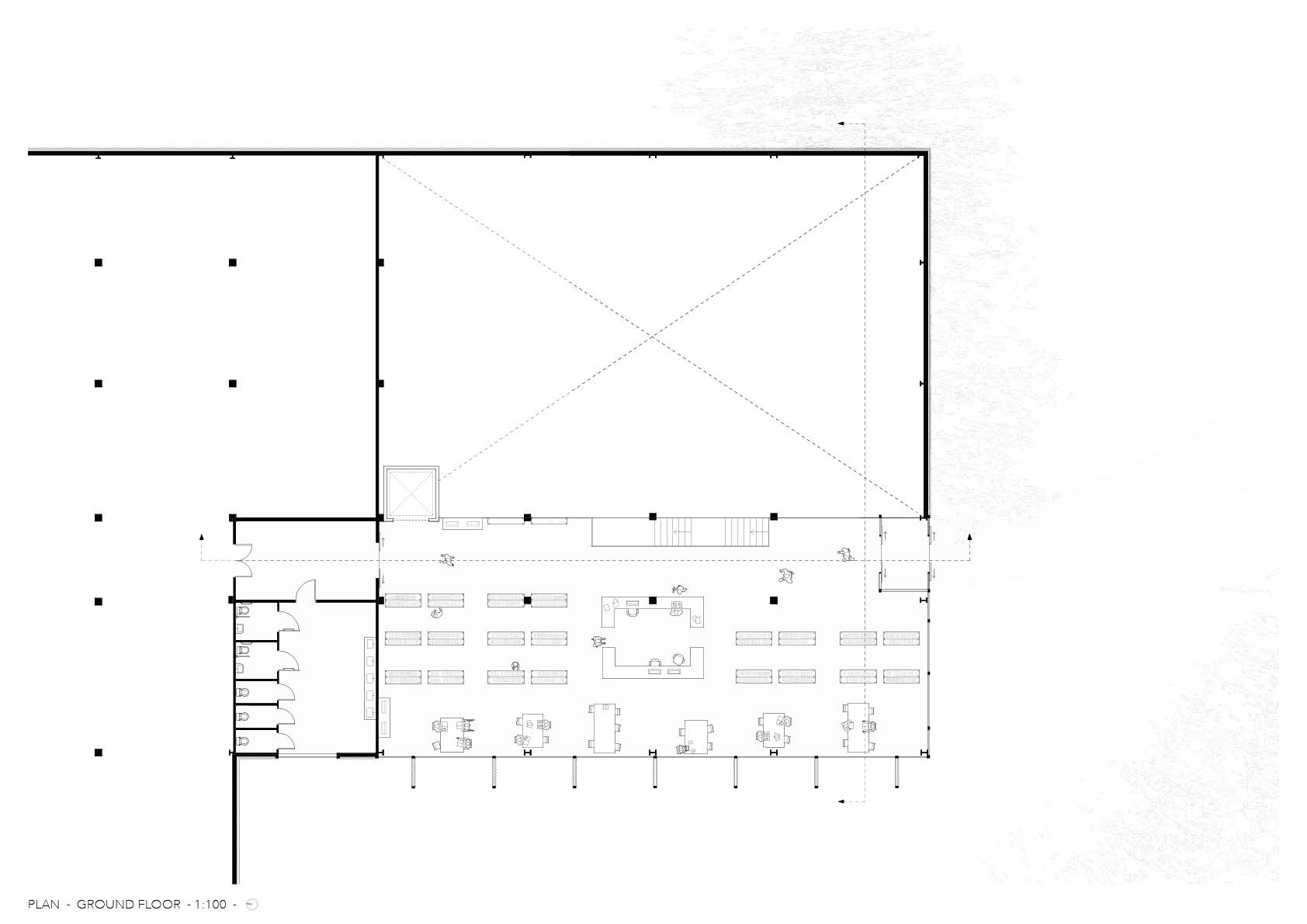
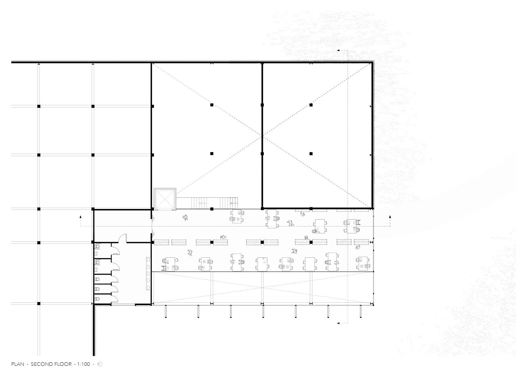
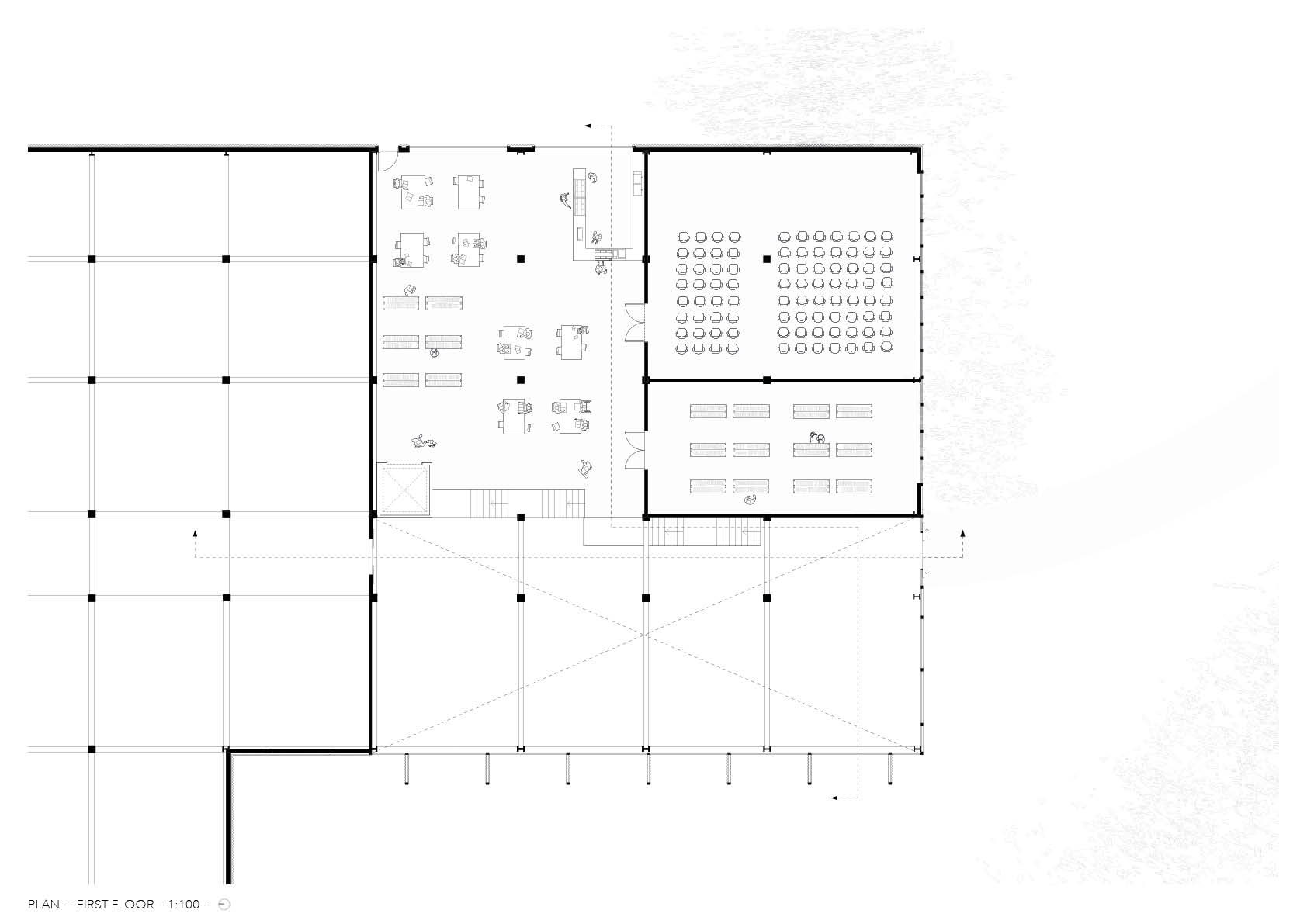
Transformation of Toppstöðin









    








.   .   


.  

























Cargo Collective > Iceland University of the Arts > School of Architecture 
Urban Lab - Design Agency